Multilocale in vendita

Quattro Castella, Via Salvador Allende - Orologia
Informazioni in agenzia
6 locali 6 locali
145 Mq 145 Mq
3 bagni 3 bagni

Multilocale in vendita

Quattro Castella, Via Salvador Allende - Orologia

Descrizione annuncio

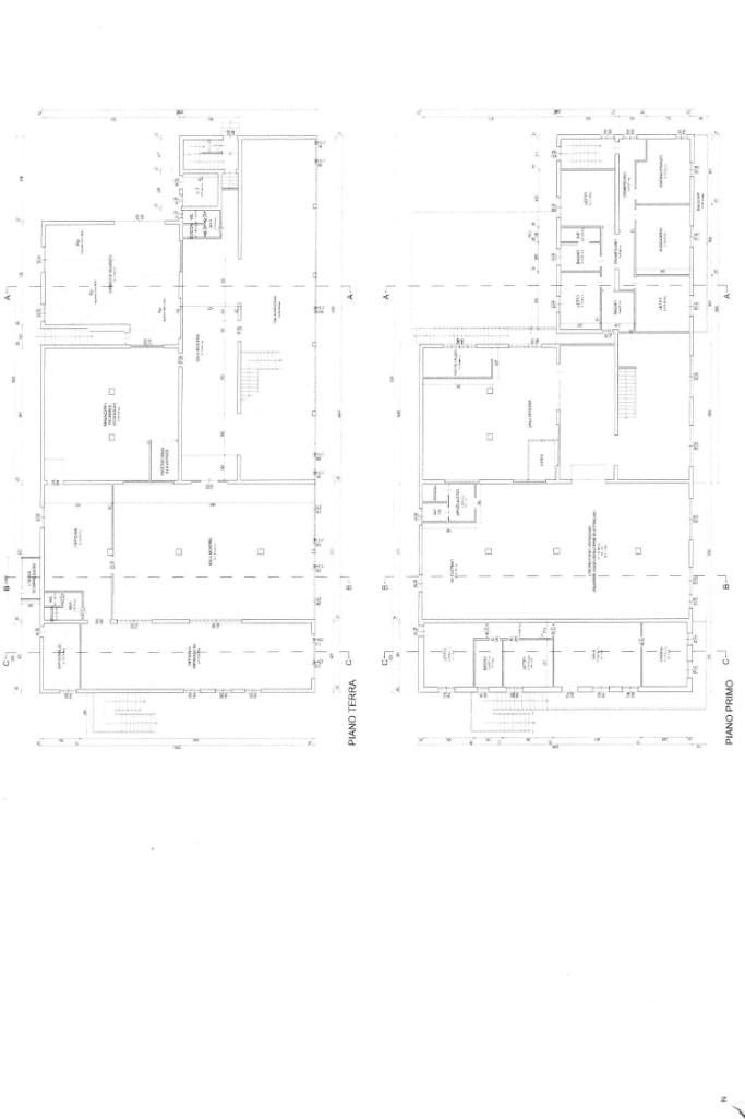
OROLOGIA Quattro Castella: In zona industriale, prospettante sulla strada principale, proponiamo in vendita Multiproprietà, degli anni'70 parzialmente ristrutturata, ideale per chi desidera avviare un'attività o investire in un'opportunità di reddito da investimento. La struttura comprende:

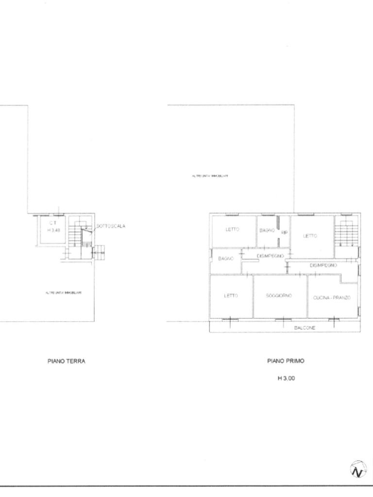
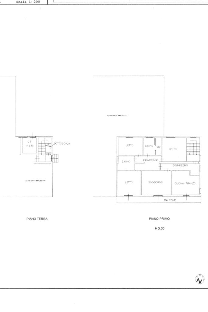
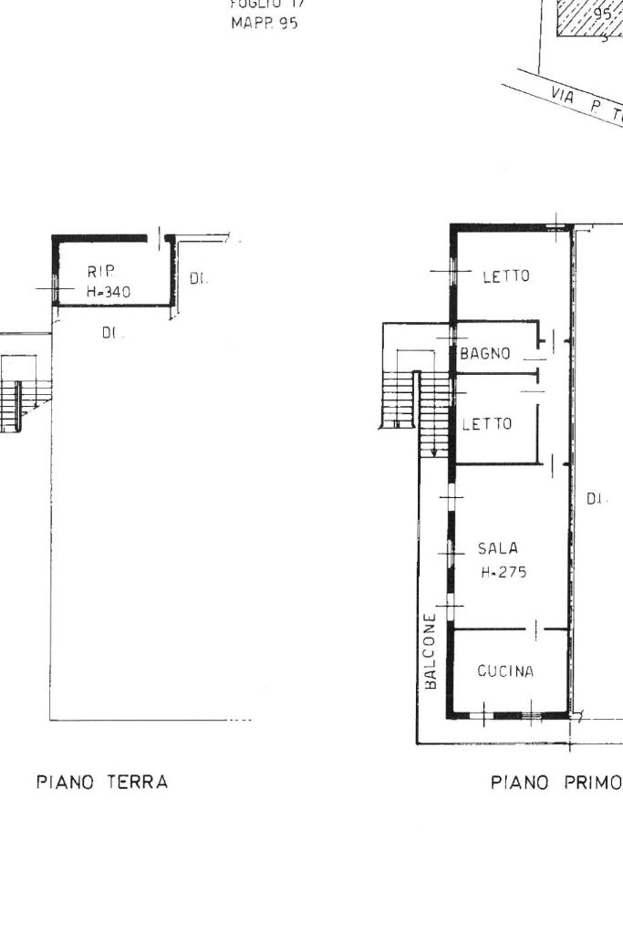
Due appartamenti distinti, con entrambi ingresso indipendente, al piano primo: - il quadrilocale (fine anni'70) che si sviluppa su una superficie complessiva di 145 mq è composto da: ingresso, balcone, cucina abitabile, soggiorno, disimpegno, tre camere matrimoniali e due bagni (entrambi ristrutturati completamente di recente); ; - il trilocale (ristrutturato completamente metà anni'90) ATTUALMENTE LOCATO, che si sviluppa su una superficie complessiva di 118 mq è composto da, soggiorno,cucina abitabile, balcone, disimpegno, due camere matrimoniali,bagno e vano lavanderia a piano terra; Completano la proprietà un' area comune ideale per il parcheggio a servizio degli appartamenti e autorimessa di circa 75 mq.

Due locali commerciali, vetrati, prospettanti su lato strada, ATTUALMENTE LOCATI,si sviluppano su due livelli, piano terra e piano primo per una superficie complessiva di circa 500 mq per piano; inoltre presentano anche un'area cortiliva (da utilizzare come spazio espositivo) privata e recintata

Mostra tutto

Nelle vicinanze

Ricariche auto elettriche Ricariche auto elettriche
Conad Montecavolo | EnelX
710 m
Scuole Scuole
Scuole
1,2 Km
Supermercati Supermercati
Conad
670 m
Conad City
1,2 Km
Negozi Negozi
Negozi
200 m
SUPER DAY
1,7 Km
Mini Market delle Bontà
2,7 Km
Bar Bar
Bar
2,3 Km
Ristoranti Ristoranti
Da Cattini
1,3 Km
Ca' Matilde srl
2,3 Km
La Lanterna
2,8 Km
Mostra tutto

Caratteristiche

Rif.:
61103709
Piano:
1 di 2 (Piano su più livelli)
Box:
1
Posti auto:
2
Balconi:
2
Terrazzi:
1
Mostra tutto
Prezzo Prezzo
Informazioni in agenzia
Spese annue Spese annue
€ 0
Proponi il tuo prezzoProponi il tuo prezzo

Classe Energetica

G
G
G
G
G
G
G
G
G
EP globale non rinnovabile:
130.00 kW h/m² anno
EP invernale del fabbricato:
EP estiva del fabbricato:
Anno di costruzione:
1970
Riscaldamento:
Autonomo
Tipo impianto:
A radiatori
Tipo alimentazione:
Metano

Ti interessa visionare l'immobile?

Fissa un appuntamento  Fissa un appuntamento

Richiedi informazioni

Clicca su Leggi per aprire l'informativa
* Questi campi sono obbligatori
Affiliato
Studio Matildica Srl
Via Fratelli Cervi, 26 42020 Quattro Castella (RE)

Il nostro staff


  • Alessandro Persona
    Affiliato

  • Simone Biagini
    Collaboratore

  • Valeria Cutroni
    Coordinatrice
Via Fratelli Cervi, 26 42020 Quattro Castella (RE)
Zona: Quattro Castella-Roncolo-Montecavolo-Puianello
Mostra su mappa
Orari: DA LUN. al VEN.: MATTINA : 09.00 - 13.00 POMERIGGIO : 15.00 - 19.30 SABATO: MATTINA: 09.00 - 13.00 POMERIGGIO: SU APPUNTAMENTO
Affiliato
Studio Matildica Srl
Via Fratelli Cervi, 26 42020 Quattro Castella (RE)

2026 Tecnocasa Franchising S.p.A. - P. IVA 08365160152 - Via Monte Bianco 60/A 20089 Rozzano (MI). Ogni agenzia ha un proprio titolare ed è autonoma. Privacy policy | Policy utilizzo | Cookie policy