Trilocale in vendita

Quattro Castella, Via Fratelli Cervi - Montecavolo
€ 195.000
3 locali 3 locali
119 Mq 119 Mq
1 bagno 1 bagno

Trilocale in vendita

Quattro Castella, Via Fratelli Cervi - Montecavolo

Descrizione annuncio

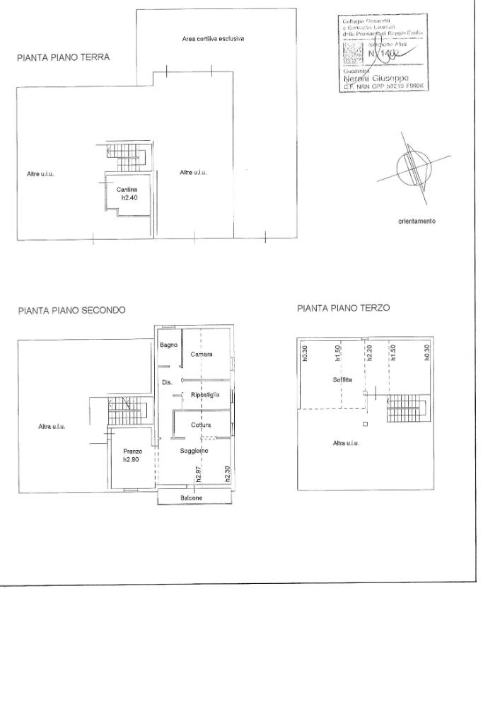
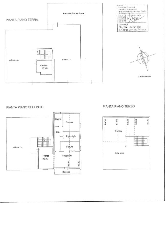
MONTECAVOLO: Si propone in vendita un appartamento già pronto da vivere e comodo ai servizi del centro, senza spese condominiali, con giardino privato staccato.

Questa proprietà, al secondo e ultimo piano di piccola palazzina, offre un'ampia zona giorno, ideale per chi ama gli spazi generosi e luminosi. Qui si trova anche la cucina a vista. La zona notte si compone di 2 camere, di cui una matrimoniale e una singola, oltre al bagno. Esiste, poi, la possibilità di ricavare una terza camera.

L'appartamento include anche un giardino privato, perfetto per chi desidera uno spazio esterno da personalizzare e vivere in tranquillità oltre alla possibilità di parcheggiare più di un'auto. La proprietà comprende un sottotetto al grezzo, utile come spazio multiuso, e un'ampia cantina. NON è presente il garage.

Questa soluzione abitativa rappresenta un'opportunità interessante per chi cerca una casa funzionale e ben posizionata.

Mostra tutto

Nelle vicinanze

Trasporto pubblico Trasporto pubblico
Trasporto pubblico
2,8 Km
Ricariche auto elettriche Ricariche auto elettriche
Conad Montecavolo | EnelX
550 m
Scuole Scuole
Scuole
2,3 Km
Supermercati Supermercati
Conad City
30 m
Conad
590 m
Negozi Negozi
SUPER DAY
480 m
Negozi
1,1 Km
Mini Market delle Bontà
2,4 Km
Ristoranti Ristoranti
Ca' Matilde srl
2,2 Km
Da Cattini
2,4 Km
La Lanterna
2,4 Km
Mostra tutto

Caratteristiche

Rif.:
61160056
Piano:
Ultimo di 1
Totale piani:
1
Balconi:
1
Camere da letto:
2
Arredamento:
Assente
Mostra tutto
Prezzo Prezzo
€ 195.000
Rata mutuo Rata mutuo
€ 919 / mese
Spese annue Spese annue
€ 0
Proponi il tuo prezzoProponi il tuo prezzo

Classe Energetica

G
G
G
G
G
G
G
G
G
EP globale non rinnovabile:
0.00 kW h/m² anno
EP globale rinnovabile:
0.00 kW h/m² anno
EP invernale del fabbricato:
EP estiva del fabbricato:
Anno di costruzione:
1967
Riscaldamento:
Autonomo
Tipo impianto:
A radiatori
Tipo alimentazione:
Metano

Ti interessa visionare l'immobile?

Fissa un appuntamento  Fissa un appuntamento

Richiedi informazioni

Clicca su Leggi per aprire l'informativa
* Questi campi sono obbligatori

Calcola il tuo mutuo

Semplice e senza impegno
Anticipo

( % )
Mutuo

( % )

pochi semplici passi

inserisci i tuoi dati
Questionario completato
Grazie per aver richiesto un appuntamento senza impegno con un nostro Consulente del Credito e Assicurativo.

Hai inserito correttamente tutti i dati necessari e a breve riceverai una e-mail con un link da convalidare per inviare i tuoi dati.
Affiliato
Studio Matildica Srl
Via Fratelli Cervi, 26 42020 Quattro Castella (RE)

Il nostro staff


  • Alessandro Persona
    Affiliato

  • Simone Biagini
    Collaboratore

  • Valeria Cutroni
    Coordinatrice
Via Fratelli Cervi, 26 42020 Quattro Castella (RE)
Zona: Quattro Castella-Roncolo-Montecavolo-Puianello
Mostra su mappa
Orari: DA LUN. al VEN.: MATTINA : 09.00 - 13.00 POMERIGGIO : 15.00 - 19.30 SABATO: MATTINA: 09.00 - 13.00 POMERIGGIO: SU APPUNTAMENTO
Affiliato
Studio Matildica Srl
Via Fratelli Cervi, 26 42020 Quattro Castella (RE)

2026 Tecnocasa Franchising S.p.A. - P. IVA 08365160152 - Via Monte Bianco 60/A 20089 Rozzano (MI). Ogni agenzia ha un proprio titolare ed è autonoma. Privacy policy | Policy utilizzo | Cookie policy