Rustico in vendita

Quattro Castella, Via Boiardo - Piazza Navona
Informazioni in agenzia
6 locali 6 locali
142 Mq 142 Mq
1 bagno 1 bagno

Rustico in vendita

Quattro Castella, Via Boiardo - Piazza Navona

Descrizione annuncio

SALVARANO:

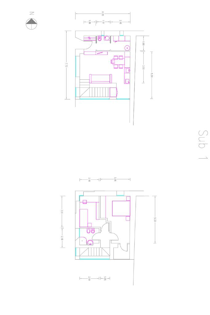
Nel comune di Quattro Castella, si propone in vendita un affascinante rustico d'epoca. L'immobile si sviluppa su più livelli e offre un progetto chiavi in mano per la realizzazione di due abitazioni separate in classe energetica A4.

Ogni unità abitativa è progettata per includere una camera e mezzo, garantendo spazi funzionali e ben distribuiti, una autorimessa di proprietà cadauna e un giardino anch'esso di proprietà che offre tranquillità e privacy.

L'immobile conserva il fascino del passato, con la possibilità di personalizzare gli interni secondo le proprie esigenze.

I preventivi per i lavori di ristrutturazione sono già disponibili, facilitando il processo di trasformazione e valorizzazione di questa proprietà unica. È inoltre possibile personalizzare il progetto fino alla fine con consegna dell'immobile chiavi in mano.

Mostra tutto

Nelle vicinanze

Trasporto pubblico Trasporto pubblico
Trasporto pubblico
2,5 Km
Ricariche auto elettriche Ricariche auto elettriche
Conad Montecavolo | EnelX
2,3 Km
Supermercati Supermercati
Conad City
1,8 Km
Conad
2,3 Km
Negozi Negozi
SUPER DAY
1,6 Km
Negozi
2,8 Km
Ristoranti Ristoranti
Ristorante Da Mandarein
2,1 Km
Bar Ristorante Al Parco di Roncolo
2,8 Km
La Locanda
2,9 Km
Mostra tutto

Caratteristiche

Rif.:
61011659
Piano:
2 di 2 (Piano su più livelli)
Box:
1
Balconi:
1
Camere da letto:
2
Arredamento:
Assente
Mostra tutto
Prezzo Prezzo
Informazioni in agenzia
Spese annue Spese annue
€ 0
Proponi il tuo prezzoProponi il tuo prezzo

Classe Energetica

Questo immobile è esente da classe energetica
Anno di costruzione:
1960
Riscaldamento:
Assente

Ti interessa visionare l'immobile?

Fissa un appuntamento  Fissa un appuntamento

Richiedi informazioni

Clicca su Leggi per aprire l'informativa
* Questi campi sono obbligatori
Affiliato
Studio Matildica Srl
Via Fratelli Cervi, 26 42020 Quattro Castella (RE)

Il nostro staff


  • Alessandro Persona
    Affiliato

  • Simone Biagini
    Collaboratore

  • Valeria Cutroni
    Coordinatrice
Via Fratelli Cervi, 26 42020 Quattro Castella (RE)
Zona: Quattro Castella-Roncolo-Montecavolo-Puianello
Mostra su mappa
Orari: DA LUN. al VEN.: MATTINA : 09.00 - 13.00 POMERIGGIO : 15.00 - 19.30 SABATO: MATTINA: 09.00 - 13.00 POMERIGGIO: SU APPUNTAMENTO
Affiliato
Studio Matildica Srl
Via Fratelli Cervi, 26 42020 Quattro Castella (RE)

2026 Tecnocasa Franchising S.p.A. - P. IVA 08365160152 - Via Monte Bianco 60/A 20089 Rozzano (MI). Ogni agenzia ha un proprio titolare ed è autonoma. Privacy policy | Policy utilizzo | Cookie policy